1

Profesionální prezentace nemovitostí

Profesionální fotografie jsou klíčovým nástrojem při prodeji nemovitosti, protože mají obrovský vliv na to, jak potenciální kupci vnímají danou nemovitost. Kvalitní fotografie dokážou výrazně zvýšit atraktivitu nabídky a přilákat větší počet zájemců.

2

Home staging a virtuální home staging

Nemovitosti s home stagingem se prodávají o 50% rychleji a za vyšší cenu než běžné nemovitosti

Home staging  a virtuální home staging 1 Home staging  a virtuální home staging 2
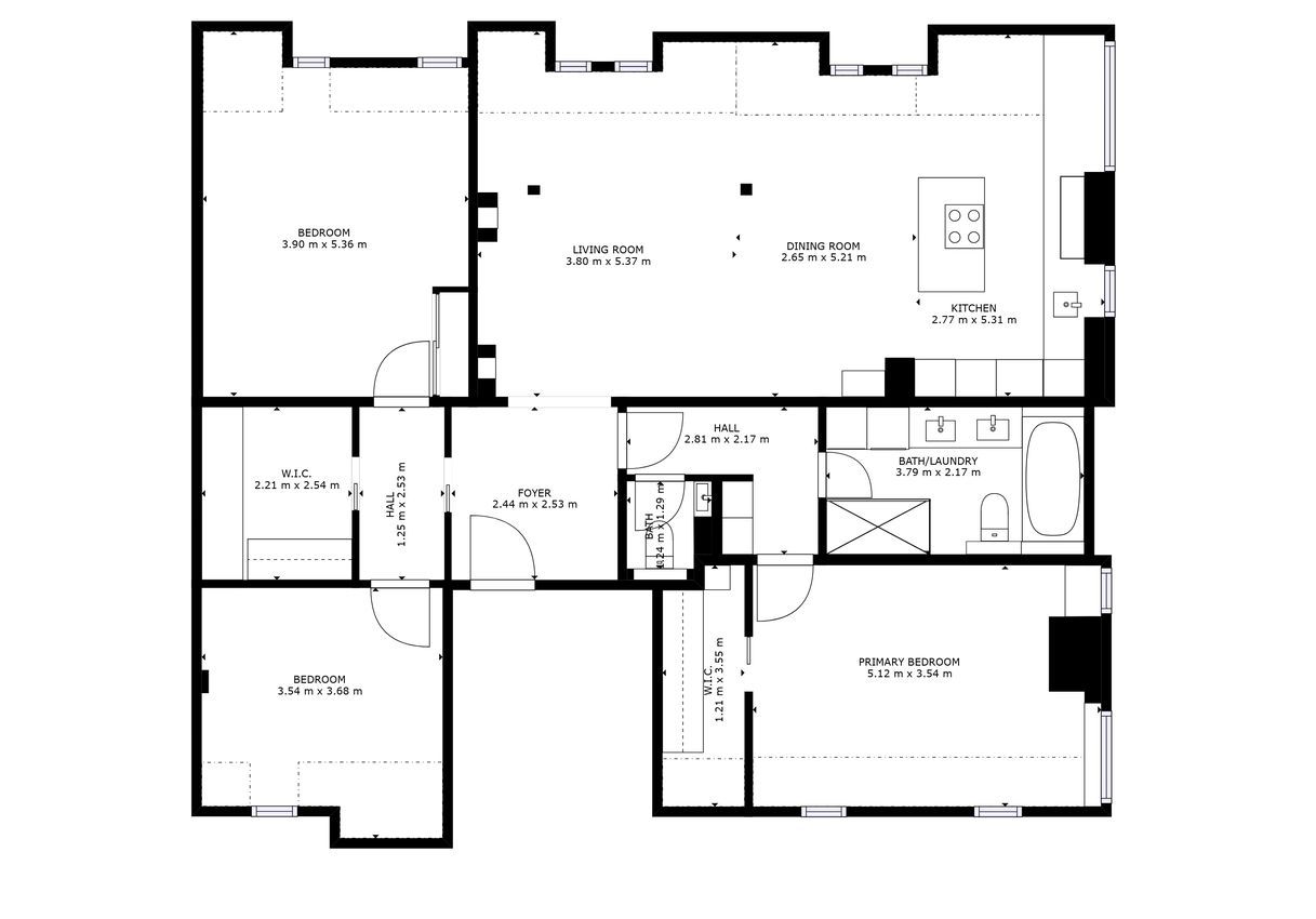
3

2D a 3D půdorysy nemovitostí

Rozměry místností a návrhy rozmístění nábytku usnadní prostorovou představu všech případných zájemců

4

3D scan nemovitosti

Kupující a zájemci si mohou nemovitost prohlédnout online v detailní podobě, což šetří čas

5

Webové stránky každé nemovitosti

Zajistím vypracování smluvní dokumentace, advokátní nebo bankovní úschova, jednání s katastrem nemovitostí

6

Předání nemovitosti

  •    Vyhotovím předávací protokol
  •    Zkontrolujeme a napíšeme stavy všech měřidel
  •    Pomohu s přepisem energií
  •    Předáme klíče novému majiteli
7

Kde inzeruji

 Sreality.cz, Idnes.cz, Realitymix.cz, DomyBytyPozemky.cz, UlovDomov.cz,

ČeskéReality.cz, Eurobydlení.cz, ViaReality.cz, Reality.cz, RealHit.cz,

Superbyty24.cz, Bazoš.cz, Astonereality.cz

8

Kde inzeruji

 Sreality.cz, Idnes.cz, Realitymix.cz, DomyBytyPozemky.cz, UlovDomov.cz,

ČeskéReality.cz, Eurobydlení.cz, ViaReality.cz, Reality.cz, RealHit.cz,

Superbyty24.cz, Bazoš.cz, Astonereality.cz

9

Další služby

  • Možnost vypracování Průkazu energetické náročnosti budov  /PENB/.
  • Možnost vypracování Znaleckého posudku.
  • Zajistím financování pořízení nemovitosti hypotékou.
  • Zpracuji odhad tržní ceny nemovitostí pro dědické řízení.

Používáme cookies k optimalizaci našich webových stránek a našich služeb. Další informace o cookies najdete zde.

Nastavení


Odhad ceny nemovitosti ZDARMA

Spočítejte si orientační cenu vaší nemovitosti.

Odhad ceny nemovitosti ZDARMA
arrow Spočítat ZDARMA